
Product features
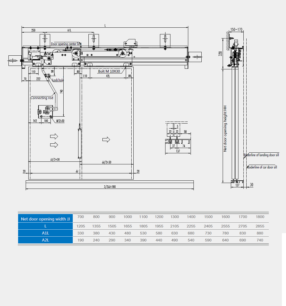
The door shown in the figure is left opening and the right opening is manufactured symmetrically.
Product Description

The door shown in the figure is left opening and the right opening is manufactured symmetrically.