Product features

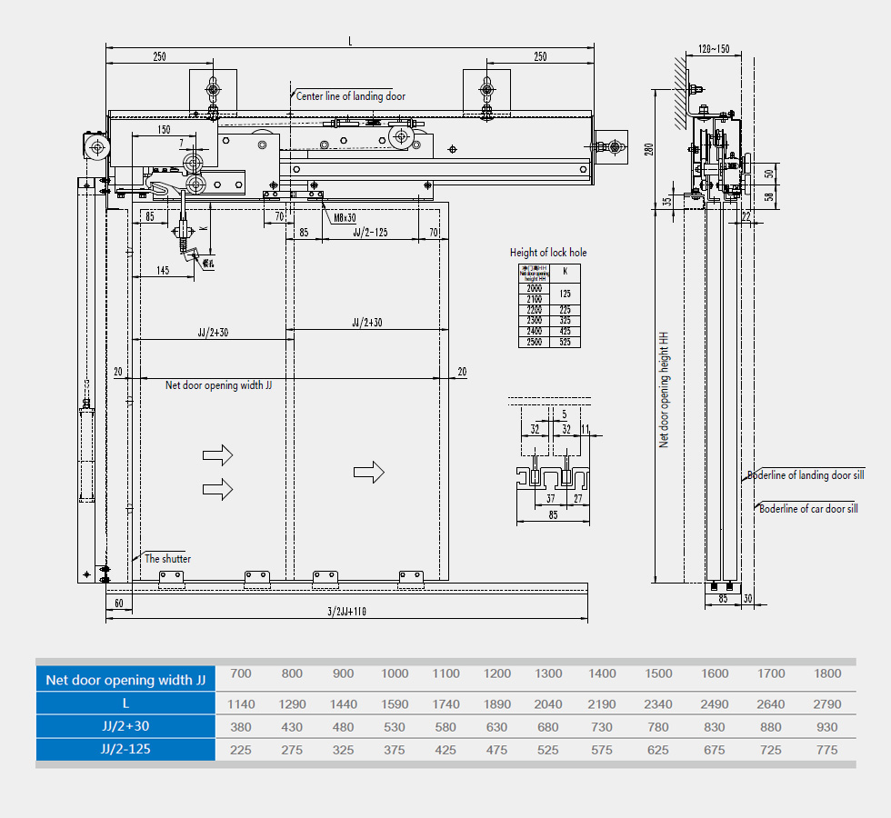
The door shown in the figure is left opening and the right opening is manufactured symmetrically.

Product Description
NINGBO XINDA GROUP CO., LTD all rights reserved     2015 All rights reserved.